Großzügige Geschäftsfläche im Herzen von Berchtesgaden
Eckdaten
- Art Verkaufsfläche
- Lage 83471 Berchtesgaden
- Miete zzgl. NK 2.550,00 €
- Warmmiete 2.850,00 €
- Nebenkosten 300,00 €
- Gewerbefläche ca. 120 m²
- Zimmer 3
- Baujahr 1534
- Nutzfläche ca. 120 m²
- Denkmalschutzobjekt ja
- Heizungsart Fernwärme
- Bezugstermin sofort
- Immobilien-ID 138403473
Immobilie
Diese denkmalgeschützte Verkaufsfläche stammt aus dem Jahr 1534 und beeindruckt mit ihrer historischen Architektur. Das Gebäude besticht durch seine rustikale Fassade und die filigranen Details, die die Zeit überdauert haben. Trotz seines Alters strahlt die Immobilie eine besondere Eleganz aus und zieht die Blicke auf sich.
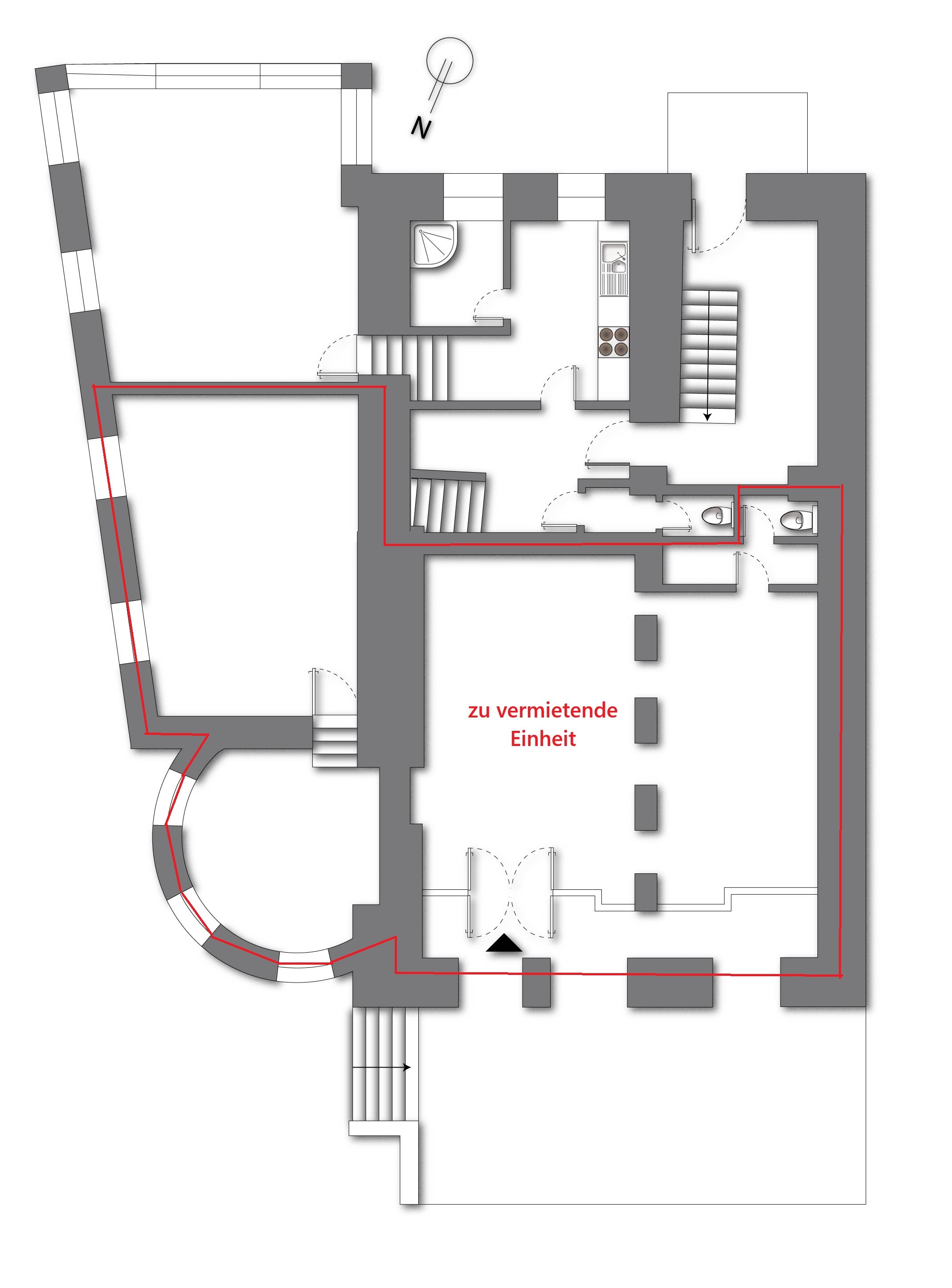
Beim Betreten der Räumlichkeiten wird man von einem großzügigen Eingangsbereich empfangen, der mit seinem historischen Charme überzeugt. Durch die großen Fenster fällt viel Tageslicht in die Verkaufsfläche und schafft eine angenehme Arbeitsatmosphäre. Die einzelnen Verkaufsbereiche sind großzügig gestaltet und bieten ausreichend Platz für Präsentationen und Kundeninteraktion.
Ebenso ist eine separates WC`s und ein Abstellraum vorhanden.
Die Immobilie befindet sich im Herzen von Berchtesgaden und bietet eine gute Anbindung an öffentliche Verkehrsmittel.
Aktuell wäre es möglich die Gewerbefläche auch zu erweitern.
Lage
Die Verkaufsfläche befindet sich im Herzen von Berchtesgaden, einer malerischen Gemeinde in den bayerischen Alpen. Die Gegend ist bekannt für ihre atemberaubende Landschaft mit imposanten Bergen, dichten Wäldern und klaren Seen. Am Marktplatz, an dem sich die Immobilie befindet, herrscht reges Treiben, vor allem in den Sommermonaten, wenn Touristen aus aller Welt die Region besuchen. Hier finden sich gemütliche Cafés, traditionelle bayerische Restaurants und lokale Geschäfte, die zum Bummeln und Verweilen einladen.
Berchtesgaden selbst ist eine charmante Gemeinde mit einer reichen Geschichte und einer lebendigen Kulturszene. Die Architektur ist von traditionellen bayerischen Gebäuden geprägt, die mit ihren kunstvollen Verzierungen und typischen Holzbalkonen das Stadtbild verschönern. Neben zahlreichen Sehenswürdigkeiten wie dem Königssee und dem berühmten Kehlsteinhaus bietet der Landkreis auch eine Vielzahl von Freizeit- und Erholungsmöglichkeiten, darunter Wandern, Skifahren und Wellness.
Die Region um Berchtesgaden ist besonders für ihre unberührte Natur und ihre vielfältigen Outdoor-Aktivitäten bekannt. Wanderer und Bergsteiger können hier auf gut markierten Wegen die imposanten Gipfel der Berchtesgadener Alpen erkunden. Die Region ist auch für ihre traditionelle bayerische Küche und ihre Gastfreundschaft berühmt, was sie zu einem beliebten Reiseziel für Naturliebhaber und Genießer macht.
Sonstiges
Die hier angegebenen Informationen sind unverbindlich.
Bei den vorliegenden Angaben handelt es sich um Angaben von Dritten, für welche ausdrücklich keine Haftung übernommen wird.
Irrtum und Zwischenverwertung bleiben vorbehalten.
Energieausweisangaben
- Heizungsart Fernwärme
Weitere Informationen
Herzlichen Dank für Ihre Anfrage.
Wir werden diese so schnell wie möglich bearbeiten.




